LED Wandleiste Erfurt 208 für indirekte Beleuchtung PLEXI PLUS
Die LED Wandleiste Erfurt 208 PLEXI PLUS ist eine Wandleiste für den Einbau von LED Strips. Das Licht der LEDs wird von der Wand und der Decke reflektiert. Die indirekte Beleuchtung ist Wandbeleuchtung und Deckenbeleuchtung in einem. Der mitgelieferte Plexistreifen schützt Ihre LED Strips vor Staub und Insekten und kann bei Bedarf leicht gereinigt werden.
Durch den Einbau der LED Reflektorleisten optimieren Sie Ihre indirekte Beleuchtung, denn die Lichtstärke der LED Streifen wird verdoppelt, die LEDs werden gekühlt und das Durchscheinen des Lichts durch die Styroporleiste wird verhindert.
Die Ergänzungselemente sind in Größe und Stuckmuster auf die LED Wandleiste Erfurt 208 PLEXI PLUS für indirekte Beleuchtung abgestimmt. Der Plexistreifen ist im Kaufpreis und Lieferumfang enthalten!
Die Styroporleisten und die Reflektorleisten 2 m lang sind. Sie können deshalb nur geradzahlige Mengen in diese Bestellfelder eintragen (z.B. 2 m, 4 m, 6 m, ...). Bitte geben Sie bei der Bestellmenge für die Leisten die gewünschte Meterzahl und bei den Ergänzungselementen die Stückzahl an!
LED Wandleiste Erfurt 208 für indirekte Beleuchtung Plexi Plus

Die Stuckleiste Erfurt 208 Plexi Plus für indirekte Deckenbeleuchtung ist eine praktische und dekorative Wandleiste. In die innere Aussparung der Zierleiste können neben den LED Reflektorstreifen aus Aluminium und den LED Strips auch die Plexistreifen als Staubschutz für die LED Strips eingebaut werden.
Möchten Sie die indirekte Wandbeleuchtung auch mit hellem, direktem Licht von LED Spots kombinieren? Auch kein Problem! Die Stuckleiste Erfurt 208 Plexi Plus für indirekte Beleuchtung lässt sich ohne großen Aufwand mit der Stuckleiste für LED Einbauleuchten Münster 320 L kombinieren. In die Grundplatte der L-förmigen Stuckleiste Münster 320 L können die energiesparenden LED Spots eingebaut werden. Weiterhin eignet sich der Hohlraum im Inneren des L-Profils zum Platzieren der Elektronik der LED Beleuchtung. Hier steht genug Platz für das Netzteil und den Dimmer zur Verfügung. Werden diese Elektroteile in der Stuckleiste versteckt, empfehlen wir Ihnen, auch Lüftungsgitter mit zu bestellen und an der entsprechenden Stelle in die Stuckleiste einzubauen. So sorgen Sie für die erforderliche Lüftung und Kühlung.






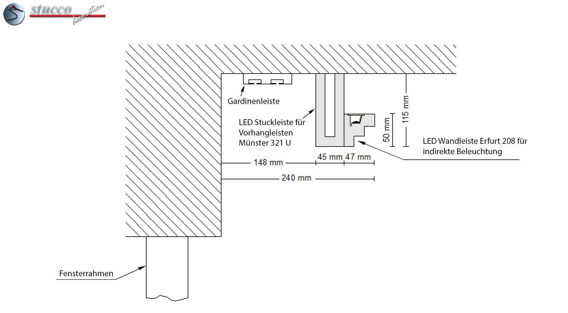
Wenn Sie die indirekte Beleuchtung auch über die Fenster weiterführen möchten, können Sie die LED Stuckleiste Erfurt 208 Plexi Plus mit dem Basisprofil Münster 321 U kombinieren. Wie auf der letzten Skizze zu sehen ist, wird das Basisprofil Münster 321 U an die Decke, vor die Gardinenleiste montiert. An die Vorderseite des Basisprofils kann dann die LED Stuckleiste Erfurt 208 Plexi Plus angeklebt werden.



Klicken Sie auf die Bilder, um die zu vergrößern!
Deckenleisten aus Styropor Bern 400
Die Deckenleiste Bern 400 ist ein schlichtes, aber sehr dekoratives Stuckprofil. Dank der Stufenmuster und den geraden Linien entsteht ein raffiniertes Deckelement. Diese Randleiste verfügt über ein zeitloses Design.
Auch mit klassischen Stuckleisten kann diese Deckenleiste kombiniert werden. Wir das Rahmenprofil Bern 400 über eine klassische Stuckleiste an die Decke geklebt, erhöht man optisch die Raumhöhe. Ein alter, doch heute auch aktueller Trick von Innenraumgestalter, um Räume höher und größer erscheinen zu lassen.
Die Stuckleiste Bern 400 ist wirklich ein Alleskönner: das Stuckprofil kann nämlich auch als Wandleiste verwendet werden. Die Wandleiste kann zum Beispiel als dekorativer Rahmen für Bilder oder Wandspiegel genutzt werden. Wird die Wandleiste als Bordüre waagerecht montiert, können sie die Wandfläche optisch trennen.
Auch die Eckelemente dieser Stuckleiste sind sehr praktisch: mit 4 vorgefertigten Eckelementen können Sie eine moderne Stuckrosette um die Deckenlampe zaubern oder ein Wandrosette im minimalistischen Stil. Lassen Ihrer Kreativität freien Lauf!

PLEXI PLUS Stuckleisten für die indirekte Beleuchtung neu entwickelt
Im Inneren aller unserer LED Stuckleisten finden Sie zwei Nuten: die eine ist für die Reflektorstreifen und LED Strips gedacht, die zweite fürs Anschlusskabel. Jetzt werden die LED Stuckleisten um einen Plexistreifen erweitert, der die Strips vor Staub und Insekten schützt! Staub direkt auf den LEDs kann deren Lichstärke beeinträchtigen. Deshalb müssen die LED Streifen regelmäßig entstaubt werden. Früher geschah das mit Hilfe von Pinsel und Staubsauger. Stellen Sie sich vor, was für Unannehmlichkeiten das bedeutete - vor allem für Allergiker.



Schutz der LED Strips vor Staub und Insekten durch Plexistreifen
Unsere neuentwickelten PLEXI PLUS Stuckleisten für indirekte Beleuchtung werden serienmäßig mit Plexistreifen geliefert. Der Plexistreifen passt millimetergenau in die dafür gefertigte Nut. Die Plexistreifen in den Stuckleisten können Sie einfach und mühelos mit einem Mikrofasertuch entstauben und ersparen sich viel Aufwand und Schwierigkeiten beim Entstauben der LED Stripes! Die Schutzfolie auf den Plexistreifen verhindert, dass die Plexistreifen beim Transport zerkratzt werden. Vor dem Einlegen der Plexistreifen in die Stuckleisten für indirekte Beleuchtung entfernen Sie im Nu die Schutzfolie.

Indirekte Beleuchtung mit dem Stuckprofil Essen 202 und LED Reflektorstreifen
LED Reflektorstreifen sind neu entwickelte Produkte unserer Firma. Die LED Reflektorstreifen sind L-förmige Aluminium-Profile.LED Reflektorstreifen werden mit einer Schutzfolie geliefert, die vor der Montage entfernt werden soll.
Jetzt können können Sie indirekte Beleuchtung mit Reflektorstreifen und Lichtleisten selber bauen!
Mit Hilfe der LED Reflektorstreifen können Sie die Lichtstärke der LED Strips verdoppeln.
Ihre Vorteile:
-
LED Reflektorstreifen verdoppeln die Lichtstärke der verwendeten LED Strips
-
LED Strips werden dank des LED Reflektorstreifens nicht die Stuckleisten für die indirekte Beleuchtung durchleuchten
-
da LED Reflektorstreifen für die Kühlung der LED Strips sorgen, wird der Lebensdauer der LED Strips auch verlängert. Genau so, wie die Stuckleisten für indirekte Beleuchtung, können LED Reflektorstreifen vor Ort auf Maß mit einer Schneidzange geschnitten werden




Die LED Reflektorstreifen sollen mit dem Systemkleber in die Innenseite der Lichtleiste für die indirekte Beleuchtung fixiert werden. Da die LED Strips über eine selbstklebende Hinterseite verfügen, kann man die einfach auf die LED Reflektorstreifen kleben. Sparen Sie an Stromkosten und sichern Sie den LED Stripes eine längere Lebensdauer mit Hilfe der LED Reflektorstreifen!

































