Photogallery
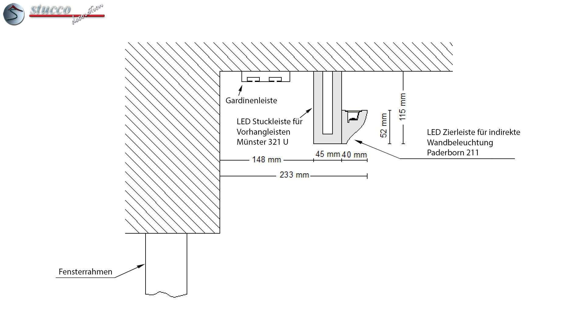
AllVorteile beschichteter Fassadenprofile und Außenstuck Profile aus StyroporZahlreiche Fassadenprofile zur FensterumrandungStuckfassaden mit Außenstuck Fassadenprofilen und FassadenelementenUnsere Bestseller Deckenleiste LED Essen 202 als Kombi StuckprofileStuckprofile für direkte Beleuchtung mit LED SpotsMontage der L-förmigen LED Stuckleisten aus StyroporMontage der U-förmigen Styropor Stuckleisten Decke LEDMontage der Stuckleisten mit LED Beleuchtung2 verschiedene Kleber zum Befestigen der Stuckleisten für LED BeleuchtungLüftungsgitter in Stuckleisten für die LED BeleuchtungParallelschaltung von LED StripsBeispiel Schaltplan zum Anschluss von 24 m LED Strips 5050-60 warmweißRGB Strips - mehrere Signalverstärker, mehrere NetzteileDirekte und indirekte Beleuchtung Kombi Styropor StuckprofileBeleuchtung an der Wand und Decke mit LED Spots und Stuckleisten aus StyroporStyropor Stuckprofil und Kastenprofil: LED Beleuchtung an der Decke richtig fixierenDeckengestaltung mit StuckrosettenDekoideen mit Stuckleisten, Stuckprofilen und LED SpotsStuckleisten und Stuckprofile, um die Gardinenschiene zu verbergenKomplette Dekosäulen zur Raumgestaltung – ohne und mit LED BeleuchtungKomplette, beschichtete Dekosäulen für den Außenbereich - ohne und mit LED Beleuchtung3 unterschiedliche Säulenkapitelle für beschichtete SäulenStucksäulen aus Styropor – verschiedene Kapitelle mit LED BeleuchtungWirkungsvolle Fensterumrandung mit Schlussstein und FassadenzierelementenHarmonische Fensterrahmen - so bringen Sie die Zierleiste am Fenstersturz mit dem Fensterbankprofil in EinklangFensterumrandung schlicht oder verziert mit der beschichteten Fassadenprofil Zierleiste Georgetown 112Fassadenstuck Tympanon geradeAussenstuck DreieckbekrönungWAS KÖNNEN UNSERE LICHTLEISTEN FÜR DIE DIREKTE UND INDIREKTE BELEUCHTUNG? WIE HELFEN IHNEN UNSERE KOMBI STUCKPROFILE BEIM AUSBAU DER LED BELEUCHTUNG?LED Zierleiste für indirekte Wandbeleuchtung Paderborn 211Indirekte Beleuchtung Styropor Leisten Innsbruck 214Stuckprofil für direkte Beleuchtung Trier 400+2x14Stuckleisten Frankfurt 09Stuckleiste Stuckprofil "Trier 14"Individuelle Lösungen mit Sonderprofilen aus Styropor für InnenOriginellen Fassadenstuck herstellenIndividuelle Herstellung der flexiblen Stuckleisten Flexible Stuckleisten für AussenstuckIndividuelle Herstellung der flexiblen StuckleistenKomplette Fensterbank 105Gesimsprofil Außenstuck Zierleiste München 119Einbaurahmen für LED DeckenleuchteFassadenstuck Tympanon gerade Hamburg 108/104-FBeschichtete Fassadenprofil Wandleisten Jakarta 150Fassadenstuck Tympanon gerade Ankara 108Fassadenstuck Tympanon gerade Canberra 107-F










































































































































































































































































































